Products

Hot Product

description1
Zipper closure 1/5 zip athletic pullovers for men. Stretchy, lightweight, fast-drying fabric for superior performance. REGULAR FIT - US standard sizes. An athletic fit that sits close to the body for a wide range of motion, designed for optimal performance and all day comfort. FEATURES - Quarter zip closure;Thumbholes on long sleeves to keep them in place during workout
Overview
Essential details
Warranty: 1 YearAfter-sale Service: Online technical support, Onsite Installation, Onsite Training, Onsite Inspection
Project Solution Capability: graphic design, total solution for projectsApplication: Hotel
Design Style: ContemporaryPlace of Origin: Jiangsu, China
Brand Name: NOVAModel Number: NV
Type: NONEProduct name: Elevator Safety Gear
Brand: NOVAWarranty Time: 1 Year
Original: ChinaMaterial: Metal
Payment Terms: T/TFeature: Durable
Quality: 100%newLife Span: long
Package: Standard Package
Supply Ability
Supply Ability 1000000 Piece/Pieces per Year
Packaging & delivery
Packaging Details Standard Sea PackingPort FOB SHANGHAI
Picture Example:
Video Description
Product Detail
Product Description
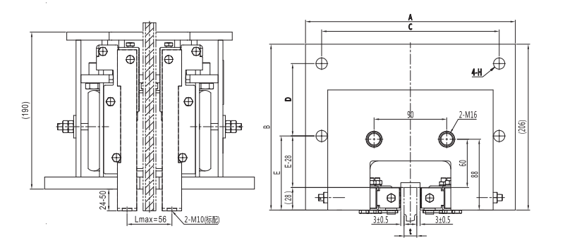
Rated speed:≤2.5m/s Total permit system quality: 1000-4000kg Matching guide rail: ≤16mm(guide rail width) Structure form: U-type plate spring, double moving wedge Pulling form: double pulling(standard M10, optional M8) Installation position: car side, counterweight side
Details Images
Different Models
Hot Products

Elevator Guide Rail

Elevator Door Operator

Elevator Speed Governor

Elevator Cabin

Elevator Controller

Elevator Traction Machine

Company Profile
Exhibition
Product Packaging
FAQ
1. Price Re: please send us inquiry from Alibaba, we will qutoe to you within 24 hours. It’s more convenient and appreciated for us if you provide your company details and your detail inquiry for elevators. 2. Payment term Re: T/T or L/C at sight. 3. Installation&Maintaining Re: We will send installation&maintaining manual along with the elevator. Our sugguestion is to hire a professional local company for installation and future maintaining, once you need any technical assistant from us, just don't hesitate to contact us by mail or phone. Technician will be sent to the job site if necessary. 4. Shipping&price term Re: Both FOB/CIF/CFR price term are ok, we have reliable forwarder helping arrange the shipment for you.

CONTACT US